Home
Cultural
Architectural
Letters
Contact
More
Mark
Mcleod
Design
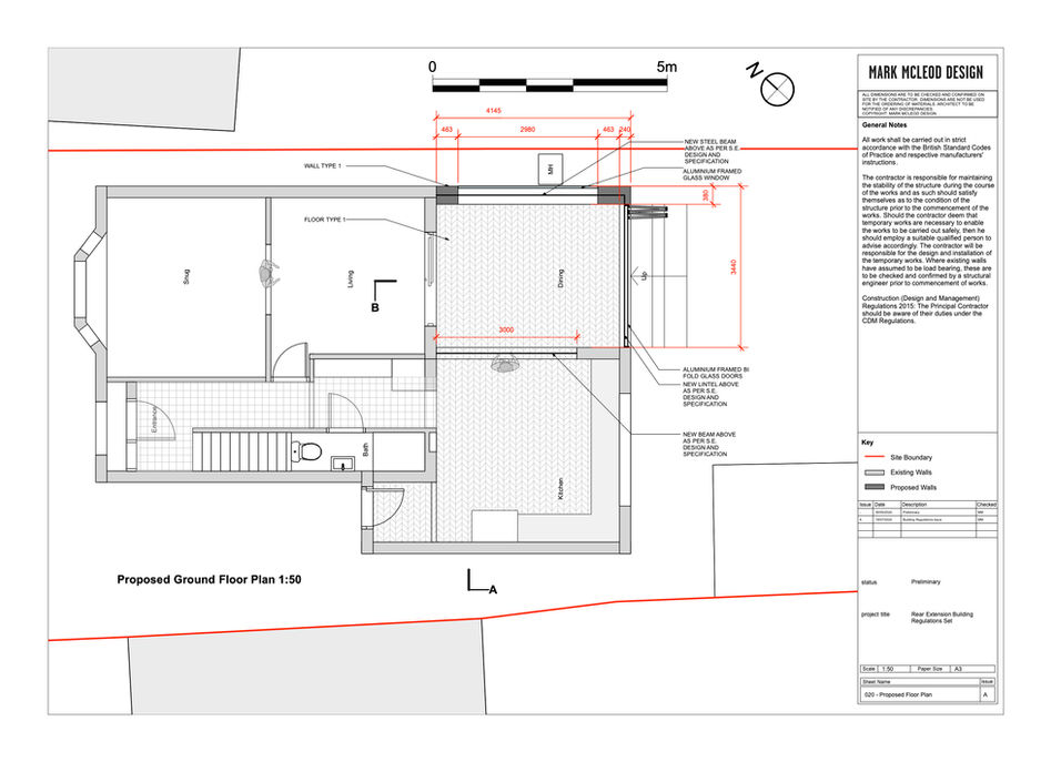
Overview: Rear Extension
Services: Building Regulations Completion: Expected 2025